
BeforeAfter
✔︎ 築24年の中古マンションのリノベーション
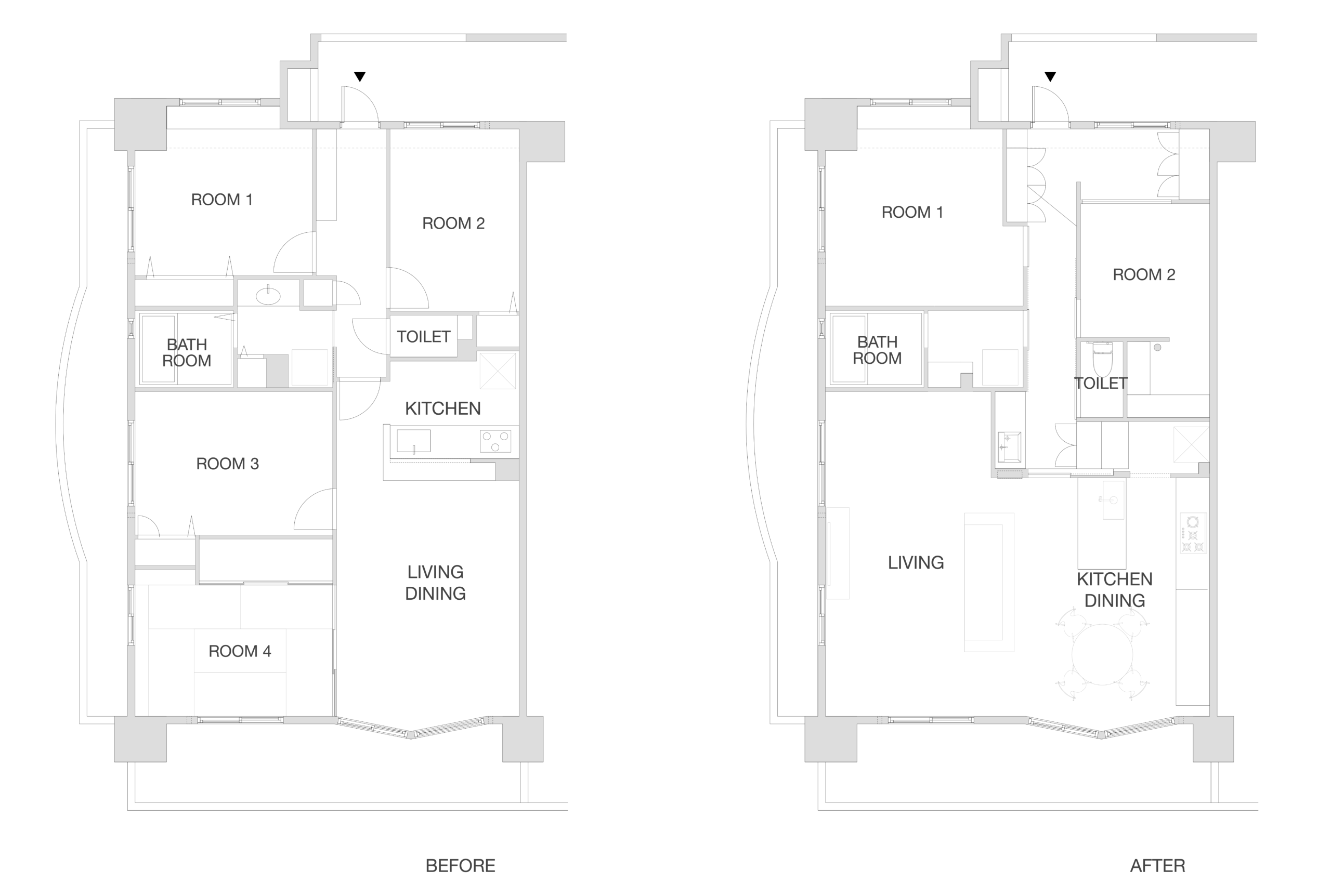
✔︎ 4LDK→2LDK

ー部屋を固定せずフレキシブルに使うー
戸建てよりも限られた空間になるので、フレキシブルに住むことを一つのテーマとして考えました。
4LDKだった部屋を2LDKへ変更し、角部屋ということもあり「明るくゆとりのある間取り」をつくった。
リビングの「ゆとり」の部分は子どもが小さいうちは「遊びスペース」、成長するにつれてデスクを置いて「勉強スペース」、人が泊まりにきた時は「来客スペース」など。気分を変えてダイニングとして使ったり、プロジェクターを使って映画を見たりとさまざまな利用ができるようにました。また、将来的に家具やカーテンで緩く仕切ることも想定し、照明もそれに合わせてフレキシブルに対応できるようにダクトレールで計画してます。
寝室と子ども部屋はあえて固定せず、子どもの成長とともに住む人数も変化していくことを想定し、部屋の利用方法は変化していく計画。例えば、子どもが小さいうちはゆとりのあるROOM1を家族寝室として利用し、成長したらROOM2を夫婦寝室に変えてROOM1は必要であれば仕切って子ども部屋として利用するなど。。。
ーリビングが見渡せる使いやすいキッチンー
キッチンは元々あった位置から南側に移動して壁面を大きくつかい、パントリーに横付けしたセパレートキッチンに。
最大のメリットはダイニングを並列することで、配膳や食事の支度と片付けがしやすくなっています。
ガスコンロの位置を壁から離した位置に計画したので横並びで調理ができます。また、シンクを壁に寄せて作業台を広く使えるように計画したことで、複数人で作業台を使えるようにしました。
キッチン横にはパントリーを計画して、冷蔵庫などの家電とストック類とゴミ箱をリビングから見えないようにしました。
スイッチ類もここに集約することで、LDKのノイズを極力減らしています。
JAPANDIのインテリアイメージもテーマとしていたため、ホワイトオークの突板に明るいクオーツ天板を乗せたシンプルなデザインにしました。シンク側のキッチンは脚をつけ浮かせることで重たくなりすぎず家具のようなデザインにしています。
ー廊下に洗面化粧台ー
玄関からまっすぐ進み、リビングへ続く扉の手前に洗面台を配置しました。
脱衣所にあった一般的で閉塞的な洗面を思い切って出すことで、友人が遊びに来た際に浴室の脱衣所に通さず、招く方も招かれた方もどちらにも配慮している。
廊下に出したことで家族の入浴を気にせずつかえて、身支度もスムーズにできるようになってます。
また、空気がこもりがちな脱衣所と違い風通しが良く、LDKに近いことから空調の恩恵も受けることができるのも嬉しいポイントです。
Berore
△ダイニングキッチンマンションではありがちな狭い玄関

△壁付けのやや閉じた印象のキッチン

△ROOM4の和室(左)とROOM3(右)
△ROOM1
△洗面脱衣所
△廊下
△トイレ
よくある中央廊下型の長方形の4LDKの間取り。
△解体後の様子
After

△LDK+ROOM3,4を繋げ、広々としたLDKに
△LDK+ROOM3,4を繋げ、広々としたLDKに
△取手は新たにオリジナルで作った真鍮の取手。シンプルで無駄を省き上品にみせてくれる。
△天板はシーザーストーン。質感がより本物に近くて強度もあり、衛生的に使える。水栓の右横にはソープディスペンサーを設置、容器の底が水や泡で汚れずに済むので掃除も楽。
△ガスコンロはスウェーデンのブランドASKOのものを採用。高火力で4口なので2~3品一度に作ることが出来る。左のコンロのみ付属している五徳をのせると、大きい鍋や中華鍋にも使える。
△キッチン横のパントリー。キッチン側の内側の壁に照明のスイッチを隠している。
△LDKと廊下は塗装仕上げ。友人に手伝ってもらい、自らで塗装。直天井のため、ダイニングは既存の照明位置を活かし、そのほかはダクトレールで対応。



△天板はモールテックスで家具は取手なしのすっきりした浮遊感のあるデザインに。廊下にあることで行き止まりにならずに使えて、鏡を1面に貼ることで横並びでみんなで使える。
△廊下側に建具をアウトセットで更新し、室内を有効的に使えるようにした。建具もホワイトオークで造作。
△間口が狭い廊下なので玄関框を斜めにして靴が多く並べられ、少しでも広く見えるよう工夫。既存の天井高の差を利用して、洗面と同じように間接照明を入れて優しく空間を照らす。
△ダークグリーンのクロスとチークのビンテージ風の造作シェルフで落ち着いた雰囲気に。
△脱衣所は室内干し用にハンガーパイプを設置。天井が低く圧迫感が出ないようクロスに合わせてホワイトを選択。
PSに余裕があったので極力小さくして収納を設置。
RENOVATION 09
マンションリノベーション約87㎡ [北九州市八幡西区]
築年数:24年
家族構成:夫婦+子ども2人
間取り:4LDK→2LDK+玄関土間
竣工年月:2022年5月
プランニング:sync-furniture
施工:CRAFT WORKS
※事前にご相談いただければ内覧も可能です。お気軽にお問い合わせください。
▷キッチンの詳細はこちら [ HOUSE 262 ]
