
プランニングからキッチン・家具の設計・製作・取付まで、SYNC-FURNITUREが担当した、マンションリノベーションの完成見学会を開催します。
「オーダーキッチン・家具屋だからこそできる空間」を形にするSYNC HAUS(シンクハウス)の第1弾。
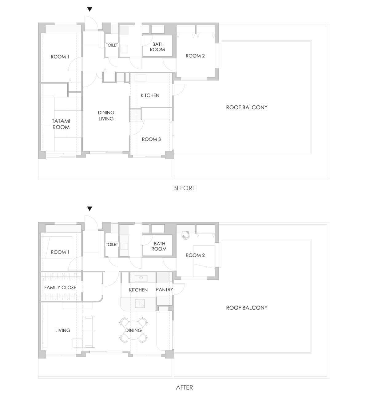
昨年秋からリノベーション工事を進め、12月に完成したばかりの自社マンションです。
コンセプトは、「北欧ヴィンテージ家具が似合う空間」。
キッチンが主役として前に出るのではなく、空間の雰囲気にそっと寄り添う存在として。陰影や質感を楽しめる左官仕上げの壁、空間全体を均一に明るくするのではなく、必要な場所にだけ灯りを落とす照明計画。
どこか北欧の住まいを思わせる、落ち着いた空間に仕上げています。
室内には、北欧ヴィンテージ家具や名作チェア、雑貨を実際に展示しており、図面や写真だけでは伝わりにくい「暮らしのスケール感」や「キッチン・家具と空間の調和」を体感していただける見学会です。

完成見学会|マンションリノベーション
開催日:2026年3月18日 (水)
開催時間:①10:00~12:00 / ②13:00~15:00 / ③16:00~18:00
集合場所:ショールーム(工房2階)
ショールームへお越しいただき、スタッフがマンションへお連れしてご案内いたします(移動時間:片道15分)
◼︎マンションの概要
間取り: 2LDK + FC
築年数: 35年(1991年10月)
住居面積:82.01㎡
場所:福岡県北九州市八幡西区瀬板
◼︎リノベーションのコンセプト
「北欧ヴィンテージ家具が似合う空間」
◼︎SYNC HAUS(シンクハウス)
プランニングから、キッチン・家具の設計・製作・取付までを、SYNC-FURNITUREがトータルで手がけるリノベーションプロジェクト。「オーダーキッチン・家具屋だからこそできる住まいのかたち」を、ひとつひとつ丁寧に実例として積み重ねていきます。


お申し込みの注意事項
◾️お申し込み完了について
[送信]ボタンを押していただくと、info@sync-furniture.comより自動返信メールが届きます。こちらをもって、お申し込み完了となります。
※あらかじめ上記メールアドレスを受信できるよう、設定をお願いいたします。
◾️自動返信メールが届かない場合
GmailやOutlookなどのフリーメールをご利用の場合、自動返信メールが迷惑メールフォルダに振り分けられることがあります。届かない場合は、迷惑メールフォルダもあわせてご確認ください。
また、自動返信メールが届かず、5日経っても担当者からご連絡がない場合は、お手数ですが再度お申し込みいただくか、お電話(093-201-5080)またはメール(info@sync-furniture.com)にてご連絡ください。
